Trabajo eficiente con Fikus
Mecanizar cajeras y punzones conjuntamente cuando la geometría presenta ambigüedades en el software CAD-CAM Fikus
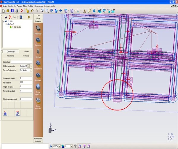
Cuando tenemos definidos punzones y cavidades en la misma pieza y le indicamos a Fikus que los mecanice por niveles, el comportamiento normal de Fikus consiste en prolongar los punzones hasta el fondo de las cajeras.
En el siguiente ejemplo, al mecanizar "Por niveles", Fikus se encuentra con una definición errónea de las geometrías ya que no encuentra ninguna interacción entre cajeras y punzones, lo cual provoca que mecanice los punzones sin "ver" las cajeras.
La manera de solucionar este caso es muy sencilla. Como en realidad lo que deseamos es que los punzones lleguen hasta la cota superior de las cajeras, pero no podemos controlar esta cota al no existir interacción entre ellas, utilizaremos el siguiente procedimiento.
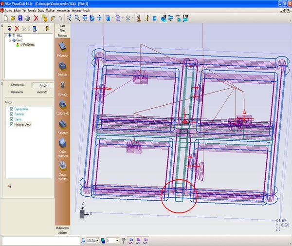
Seleccionaremos el grupo de los punzones y realizaremos una copia del mismo.

Una vez copiado, le cambiaremos el tipo para que sea un "punzón check".
A continuación modificaremos las cotas del grupo para que empiece en la cota inferior del punzón anterior y termine en la cota inferior de la cajera:


Finalmente, iremos a los grupos del proceso y añadiremos el nuevo grupo generado. Una vez realizado el cálculo observaremos que el resultado es el deseado.
Truco por Joan Ginabreda





